Piattaforme per saldature in opera
Viadotto a Le Havre
Anno: 1993-1994
Costruzione:COSTRUZIONI CIMOLAI ARMANDO SPA PORDENONE
Progettazione: Studio ROMARO di Padova in collaborazione con Uff.Tecnico CIMOLAI di Pordenone
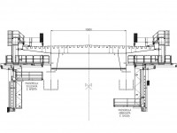
Il viadotto sul Gran Canal Maritme a Le Havre, lungo più di 1,4km con campata centrale ad arco telaio, di luce 275m, sezione interamente di acciaio per i 415m centrali e mista per i viadotti di accesso, è dal punto di vista strutturale un ponte continuo per la sua intera lunghezza con giunti strutturali saldati a ripristino di sezione.
Proprio quest’ultima caratteristica ha reso necessario progettare delle piattaforme mobili che permettessero agevolmente di raggiungere tutte le saldature da effettuare in opera.
Sono state realizzate 4 piattaforme esterne e 4 piattaforme interne, mobili e indipendenti, in grado di traslare nelle diverse direzioni per raggiungere comodamente le saldature dell’anima, della piattabanda inferiore e della lastra ortotropa superiore. Inoltre ogni piattaforma può scorrere longitudinalmente lungo il ponte. Si è prevista inoltre la possibilità di riutilizzare successivamente le piattaforme interne sia per le operazioni di finitura della pitturazione sia per gli interventi di ispezione e manutenzione nel corso della vita dell’opera.
G. Romaro, “Viadotto sul Gran Canal Maritme a Le Havre. Note strutturali e di montaggio”, in Costruzioni metalliche, n.2/1995, pagg.29-50
Costruzione:COSTRUZIONI CIMOLAI ARMANDO SPA PORDENONE
Progettazione: Studio ROMARO di Padova in collaborazione con Uff.Tecnico CIMOLAI di Pordenone
Il viadotto sul Gran Canal Maritme a Le Havre, lungo più di 1,4km con campata centrale ad arco telaio, di luce 275m, sezione interamente di acciaio per i 415m centrali e mista per i viadotti di accesso, è dal punto di vista strutturale un ponte continuo per la sua intera lunghezza con giunti strutturali saldati a ripristino di sezione.
Proprio quest’ultima caratteristica ha reso necessario progettare delle piattaforme mobili che permettessero agevolmente di raggiungere tutte le saldature da effettuare in opera.
Sono state realizzate 4 piattaforme esterne e 4 piattaforme interne, mobili e indipendenti, in grado di traslare nelle diverse direzioni per raggiungere comodamente le saldature dell’anima, della piattabanda inferiore e della lastra ortotropa superiore. Inoltre ogni piattaforma può scorrere longitudinalmente lungo il ponte. Si è prevista inoltre la possibilità di riutilizzare successivamente le piattaforme interne sia per le operazioni di finitura della pitturazione sia per gli interventi di ispezione e manutenzione nel corso della vita dell’opera.
G. Romaro, “Viadotto sul Gran Canal Maritme a Le Havre. Note strutturali e di montaggio”, in Costruzioni metalliche, n.2/1995, pagg.29-50




